Appartement met onder een handelspand of andere mogelijkheden
Vraagprijs
Vraagprijs is inclusief handelsfonds.
Instap klaar bovenliggend appartement, 3 garages, tuin en zonnepanelen. Onderin is er een handelszaak geschikt voor meerdere doeleinden
Uiteraard kan het handelspand ook als appartement worden ingericht.
Bent u op zoek naar een unieke kans om wonen en ondernemen te combineren? Dit instapklare handelspand met bovenliggend appartement biedt u het beste van beide werelden.
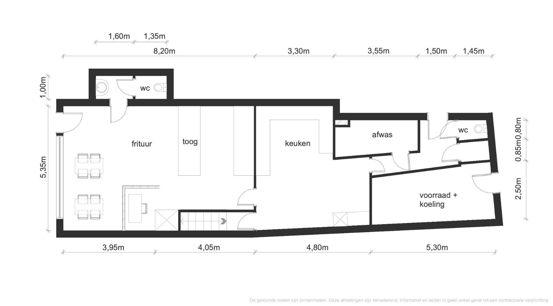
Het gelijkvloers is momenteel volledig ingericht als frituur. Dankzij de commerciële ligging op de verbindingsweg tussen Olen en Lichtaart geniet u hier van uitstekende zichtbaarheid en een constante passage. Een ideale locatie om meteen van start te gaan!
Boven de zaak bevindt zich een instap klaar appartement met aparte ingang. Hier geniet u van een lichtrijke leefruimte, keuken, badkamer en meerdere slaapkamers – ideaal om zelf te bewonen of te verhuren.
Extra troeven zijn de 3 privatieve garages én de zonnepanelen die zorgen voor energiezuinig comfort.
De volledige indeling van het pand is terug te vinden ... met plannen via onze website: www.immodelien.be
Troeven op een rij:
Vraagprijs inclusief handelsfonds
Onmiddellijk beschikbaar
Instap klaar handelspand
Appartement met aparte ingang
3 privatieve garages en tuin
Voorzien van zonnepanelen
Gelegen op de verbindingsweg Olen – Lichtaart (uitstekende zichtbaarheid)
Mogelijkheid tot onmiddellijke uitbating
Mogelijkheid tot omswitchen naar een andere uitbatingsmogelijkheid?
Zitplaatsen voorzien en uitbreidt baar.
👉 Wenst u een bezoek aan dit pand of een gratis schatting van uw woning?
Contacteer ons via info@immodelien.be
of via app/mob op 0483 73 79 00
Lees meer Verberg
Instap klaar bovenliggend appartement, 3 garages, tuin en zonnepanelen. Onderin is er een handelszaak geschikt voor meerdere doeleinden
Uiteraard kan het handelspand ook als appartement worden ingericht.
Bent u op zoek naar een unieke kans om wonen en ondernemen te combineren? Dit instapklare handelspand met bovenliggend appartement biedt u het beste van beide werelden.
Het gelijkvloers is momenteel volledig ingericht als frituur. Dankzij de commerciële ligging op de verbindingsweg tussen Olen en Lichtaart geniet u hier van uitstekende zichtbaarheid en een constante passage. Een ideale locatie om meteen van start te gaan!
Boven de zaak bevindt zich een instap klaar appartement met aparte ingang. Hier geniet u van een lichtrijke leefruimte, keuken, badkamer en meerdere slaapkamers – ideaal om zelf te bewonen of te verhuren.
Extra troeven zijn de 3 privatieve garages én de zonnepanelen die zorgen voor energiezuinig comfort.
De volledige indeling van het pand is terug te vinden ... met plannen via onze website: www.immodelien.be
Troeven op een rij:
Vraagprijs inclusief handelsfonds
Onmiddellijk beschikbaar
Instap klaar handelspand
Appartement met aparte ingang
3 privatieve garages en tuin
Voorzien van zonnepanelen
Gelegen op de verbindingsweg Olen – Lichtaart (uitstekende zichtbaarheid)
Mogelijkheid tot onmiddellijke uitbating
Mogelijkheid tot omswitchen naar een andere uitbatingsmogelijkheid?
Zitplaatsen voorzien en uitbreidt baar.
👉 Wenst u een bezoek aan dit pand of een gratis schatting van uw woning?
Contacteer ons via info@immodelien.be
of via app/mob op 0483 73 79 00
Lees meer Verberg