Ontwikkelingskans in Olen - investeringspand Bruto rendement: ±5%
Vraagprijs
Gemengd investeringspand met potentieel 5% bruto rendement.
Verwachte huur handel: €1.250/maand
Verwachte huur appartement: €800/maand
Totale potentiële huur: €2.000/maand
Bruto rendement: ±5%
Bovenverdieping met potentieel tot zelfstandige woonunit na aanleg aparte toegang langs binnen en conformiteiten.
Pand is vrij bij akte.
Boven de zaak bevindt zich een instap klaar appartement met reeds aparte ingang langs buiten.
Wanneer een ingang langs binnen wordt gecreëerd kan dit appartement een apart domicilie bekomen.
Instap klaar, pand met ontwikkelingskans met bovenliggend appartement, 3 garages, tuin en zonnepanelen.
Handelspand kan voor allerhande activiteiten worden ingericht.
Bent u op zoek naar een unieke kans om wonen en ondernemen te combineren? Dit instapklare handelspand met bovenliggend appartement biedt u het beste van beide werelden.
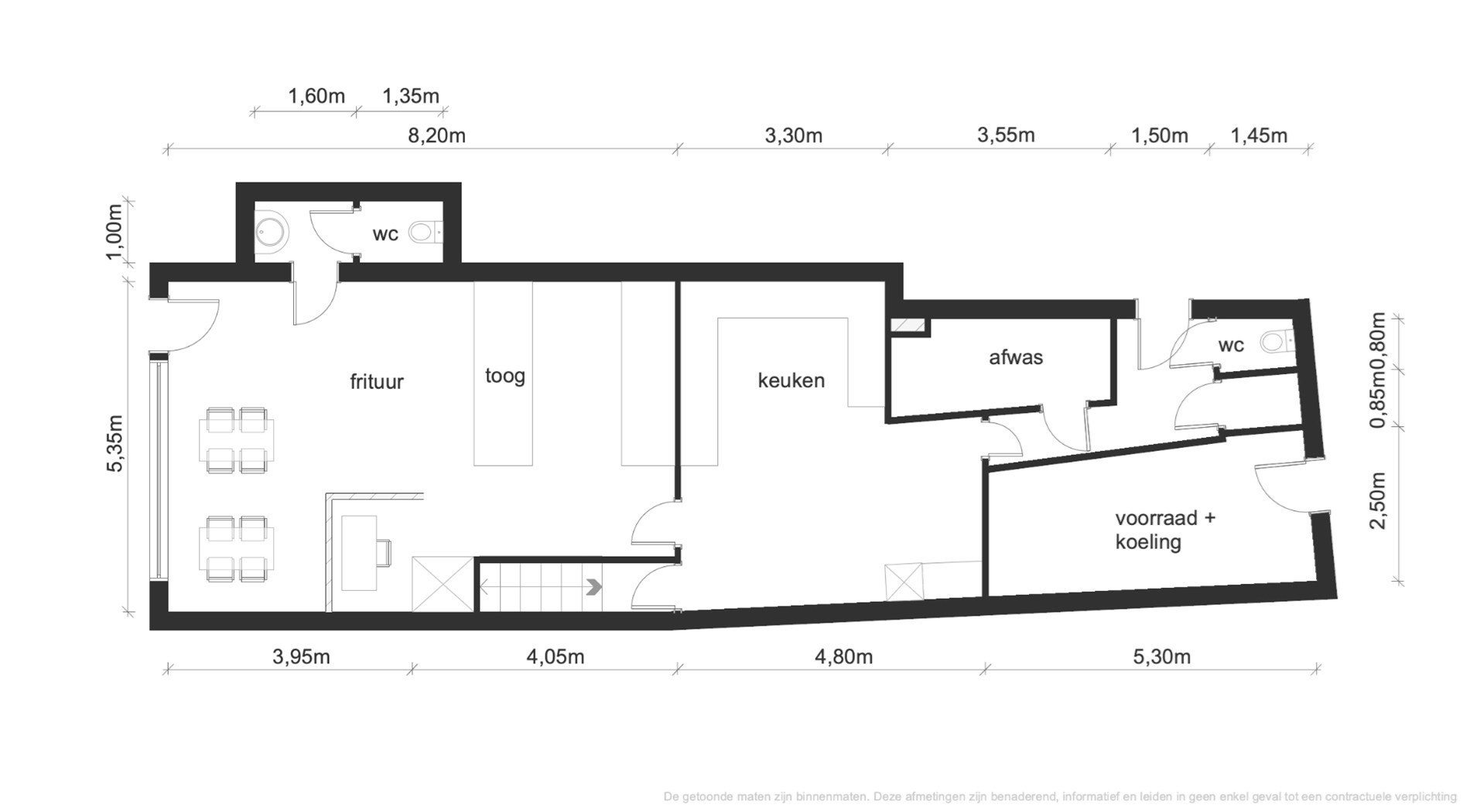
Het gelijkvloers is momenteel volledig ingericht als frituur. Dankzij de commerciële ligging op de verbindingsweg tussen Olen en Lichtaart geniet u hier van ... uitstekende zichtbaarheid en een constante passage. Een ideale locatie om meteen van start te gaan!
Boven de zaak bevindt zich een instap klaar appartement met aparte ingang langs buiten.
Wanneer een ingang langs binnen wordt gecreëerd kan dit appartement een apart domicilie bekomen.
Extra troeven zijn de 3 privatieve garages én de zonnepanelen die zorgen voor energiezuinig comfort.
De volledige indeling van het pand is terug te vinden met plannen via onze website: www.immodelien.be
Troeven op een rij:
Onmiddellijk beschikbaar
Instap klaar
Appartement met aparte ingang
Domicilie kan indien er langs de onderkant een toegang wordt voorzien naar het appartement.
De trap is reeds aanwezig.
3 privatieve garages en tuin
Voorzien van zonnepanelen
Gelegen op de verbindingsweg Olen – Lichtaart (uitstekende zichtbaarheid)
Vrij bij akte.
Mogelijkheid tot omswitchen naar een andere uitbatingsmogelijkheid?
Zitplaatsen voorzien en uitbreidt baar.
👉 Wenst u een bezoek aan dit pand of een gratis schatting van uw woning?
Contacteer ons via info@immodelien.be
of via app/mob op 0483 73 79 00
Lees meer Verberg
Verwachte huur handel: €1.250/maand
Verwachte huur appartement: €800/maand
Totale potentiële huur: €2.000/maand
Bruto rendement: ±5%
Bovenverdieping met potentieel tot zelfstandige woonunit na aanleg aparte toegang langs binnen en conformiteiten.
Pand is vrij bij akte.
Boven de zaak bevindt zich een instap klaar appartement met reeds aparte ingang langs buiten.
Wanneer een ingang langs binnen wordt gecreëerd kan dit appartement een apart domicilie bekomen.
Instap klaar, pand met ontwikkelingskans met bovenliggend appartement, 3 garages, tuin en zonnepanelen.
Handelspand kan voor allerhande activiteiten worden ingericht.
Bent u op zoek naar een unieke kans om wonen en ondernemen te combineren? Dit instapklare handelspand met bovenliggend appartement biedt u het beste van beide werelden.
Het gelijkvloers is momenteel volledig ingericht als frituur. Dankzij de commerciële ligging op de verbindingsweg tussen Olen en Lichtaart geniet u hier van ... uitstekende zichtbaarheid en een constante passage. Een ideale locatie om meteen van start te gaan!
Boven de zaak bevindt zich een instap klaar appartement met aparte ingang langs buiten.
Wanneer een ingang langs binnen wordt gecreëerd kan dit appartement een apart domicilie bekomen.
Extra troeven zijn de 3 privatieve garages én de zonnepanelen die zorgen voor energiezuinig comfort.
De volledige indeling van het pand is terug te vinden met plannen via onze website: www.immodelien.be
Troeven op een rij:
Onmiddellijk beschikbaar
Instap klaar
Appartement met aparte ingang
Domicilie kan indien er langs de onderkant een toegang wordt voorzien naar het appartement.
De trap is reeds aanwezig.
3 privatieve garages en tuin
Voorzien van zonnepanelen
Gelegen op de verbindingsweg Olen – Lichtaart (uitstekende zichtbaarheid)
Vrij bij akte.
Mogelijkheid tot omswitchen naar een andere uitbatingsmogelijkheid?
Zitplaatsen voorzien en uitbreidt baar.
👉 Wenst u een bezoek aan dit pand of een gratis schatting van uw woning?
Contacteer ons via info@immodelien.be
of via app/mob op 0483 73 79 00
Lees meer Verberg