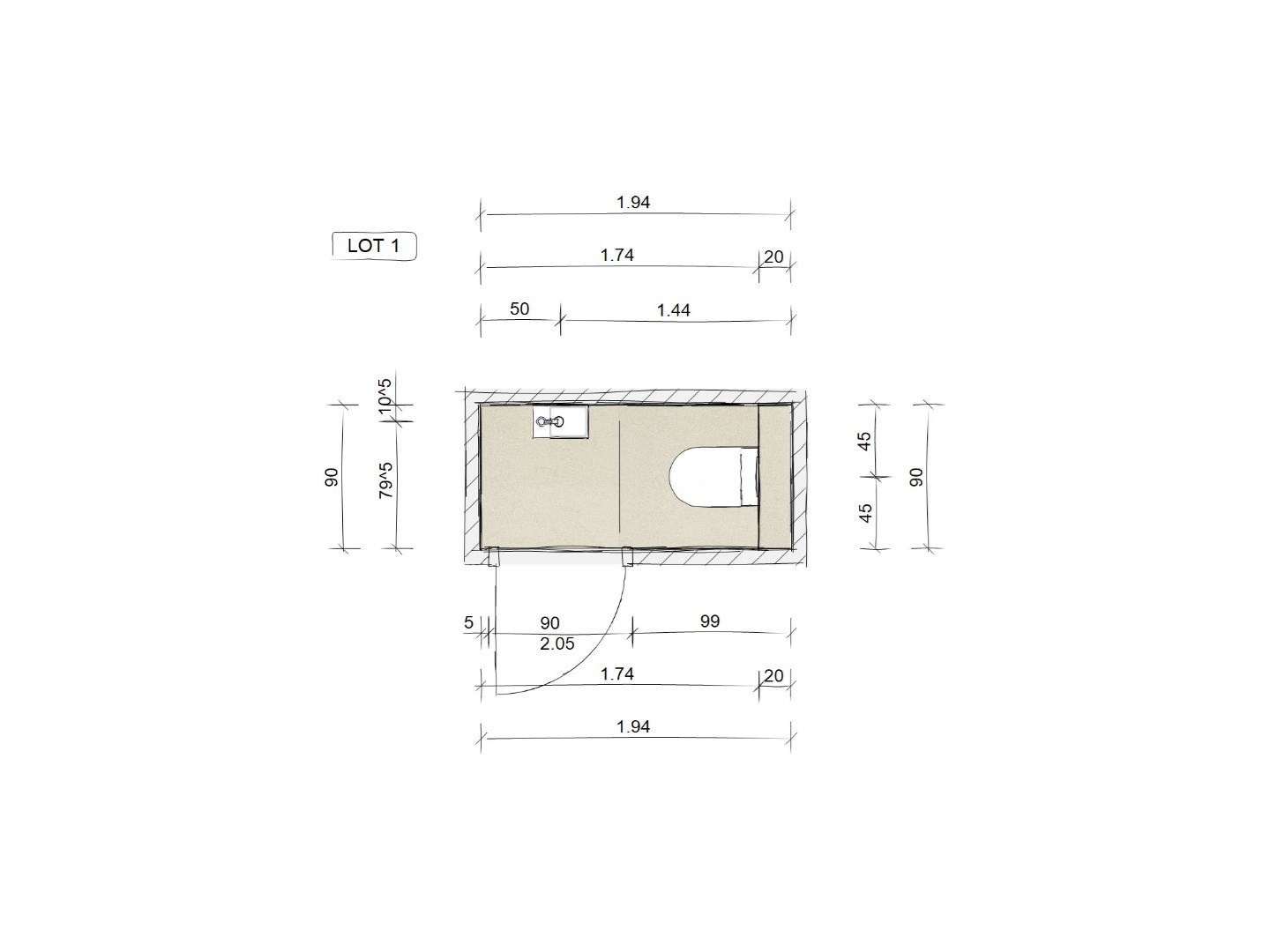
Project Hofstede LOT 1 (laatste woning) 6% BTW tot 30 juni 2025
Verkocht Mol Postelarenweg 236
Lot 1 is afgewerkt, enkel nog de voortuin.
Luxueuze ruime BEN-villawoning "LOT 1" met een E peil richting 0 in pastorij stijl aan de rand van Mol, Millegem, Achterbos. Werken gaan volop voorruit. Beschikbaarheid 2025.
Spaar een bedrag van 51.750€ op de aankoop tot 30 juni 2025.
Verkoop geschiedt onder de wet Breyne.
Bekijk ook zeker de virtuele grondplannen op www.immodelien.be om nog een beter overzicht te krijgen over de indeling van de woning.
6% btw mogelijk op de constructie wanneer de koper voldoet aan de voorwaarden in plaats van 21%, en 12% registratie op het grondaandeel.
Deze half open bebouwing in rij van 6 nieuwbouwwoningen is gelegen aan de Postelarenweg.
Deze prachtige HOB woning biedt u een zeer ruime leefruimte met aansluitend een open keuken met eiland. Wanneer u wil genieten van de mooie zomerdagen schuift u de ramen aan de achterzijde open en kan u vanop uw aangelegd terras genieten van de bijbehorende royale tuin.
Verder beschikt de woning over 4 slaapkamers, badkamer met inloopdouche, ... ruime berging en apart gastentoilet.
Onder de woning is een gegoten kelder van 15 m² waar alle nutsvoorzieningen worden in weggewerkt. Dit geeft het voordeel dat u de ruimtes op het gelijkvloers optimaal kan gebruiken.
De ruime budgetten voor keuken, vloer en sanitair geven u de mogelijkheid om de woning naar eigen keuze af te werken. Daarnaast zijn andere opties bespreekbaar waardoor u uw eigen droomwoning kan creëren.
De woningen gaan voorzien worden van de laatste energiezuinige technieken zijnde vloerverwarming/koeling in combinatie met lucht-waterwarmtepomp, ventilatie D-systeem, zonnepanelen (4920 WP) met batterij van 10kwh. Het buiten schrijnwerk zal bestaan uit PVC, aan de buitenzijde zal dit in antracietkleur zijn en aan de binnenzijde wordt dit wit. De nodige voorzieningen om in de toekomst een laadpaal te kunnen installeren worden geplaatst. Daarnaast wordt een systeem van regenwaterrecuperatie van 5000 liter voorzien.
De plannen, lastenboek, prijzen etc. zijn te raadplegen op www.immodelien.be onder documenten.
Bent u geïnteresseerd of wenst u meer informatie neem contact met ons op via info@immodelien.be , whatsapp of telefonisch op nr. 0483/73.79.00 Lees meer Verberg
Luxueuze ruime BEN-villawoning "LOT 1" met een E peil richting 0 in pastorij stijl aan de rand van Mol, Millegem, Achterbos. Werken gaan volop voorruit. Beschikbaarheid 2025.
Spaar een bedrag van 51.750€ op de aankoop tot 30 juni 2025.
Verkoop geschiedt onder de wet Breyne.
Bekijk ook zeker de virtuele grondplannen op www.immodelien.be om nog een beter overzicht te krijgen over de indeling van de woning.
6% btw mogelijk op de constructie wanneer de koper voldoet aan de voorwaarden in plaats van 21%, en 12% registratie op het grondaandeel.
Deze half open bebouwing in rij van 6 nieuwbouwwoningen is gelegen aan de Postelarenweg.
Deze prachtige HOB woning biedt u een zeer ruime leefruimte met aansluitend een open keuken met eiland. Wanneer u wil genieten van de mooie zomerdagen schuift u de ramen aan de achterzijde open en kan u vanop uw aangelegd terras genieten van de bijbehorende royale tuin.
Verder beschikt de woning over 4 slaapkamers, badkamer met inloopdouche, ... ruime berging en apart gastentoilet.
Onder de woning is een gegoten kelder van 15 m² waar alle nutsvoorzieningen worden in weggewerkt. Dit geeft het voordeel dat u de ruimtes op het gelijkvloers optimaal kan gebruiken.
De ruime budgetten voor keuken, vloer en sanitair geven u de mogelijkheid om de woning naar eigen keuze af te werken. Daarnaast zijn andere opties bespreekbaar waardoor u uw eigen droomwoning kan creëren.
De woningen gaan voorzien worden van de laatste energiezuinige technieken zijnde vloerverwarming/koeling in combinatie met lucht-waterwarmtepomp, ventilatie D-systeem, zonnepanelen (4920 WP) met batterij van 10kwh. Het buiten schrijnwerk zal bestaan uit PVC, aan de buitenzijde zal dit in antracietkleur zijn en aan de binnenzijde wordt dit wit. De nodige voorzieningen om in de toekomst een laadpaal te kunnen installeren worden geplaatst. Daarnaast wordt een systeem van regenwaterrecuperatie van 5000 liter voorzien.
De plannen, lastenboek, prijzen etc. zijn te raadplegen op www.immodelien.be onder documenten.
Bent u geïnteresseerd of wenst u meer informatie neem contact met ons op via info@immodelien.be , whatsapp of telefonisch op nr. 0483/73.79.00 Lees meer Verberg