Vrijstaande woning met volledige kelder op 1715 m² – ruimte, rust én renovatiekansen!
Verkocht Balen Berkenbos 36
Op zoek naar een woning met veel potentieel, een royale tuin en extra ruimte onder de woning? Deze degelijk gebouwde gelijkvloerse woning uit 1973 ligt op een perceel van 1715 m², beschikt over een volledige en droge kelder én biedt de mogelijkheid om naar eigen wens te moderniseren én energiezuiniger te maken.
🏡 Belangrijkste kenmerken:
Vrijstaande gelijkvloerse woning, bouwjaar 1971
Volledig onderkelderd, droog en multifunctioneel inzetbaar
Gelegen op een perceel van 1715 m²
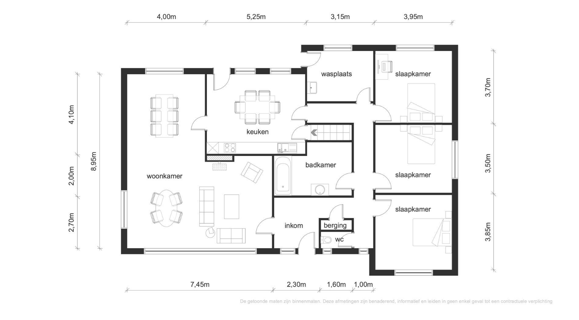
3 slaapkamers op het gelijkvloers
Grote ramen zorgen voor veel lichtinval
Oprit en diepe tuin rondom de woning
Elektrische verwarming (EPC-label F)
Overdekt terras aan de voorzijde
Rustige ligging met vlotte verbindingen
💡 Renovatiekansen met toekomstwaarde
De woning is voorzien van elektrische verwarming en heeft momenteel een EPC-label F, maar vormt een uitstekende basis voor een energiezuinige renovatie. Denk aan dak- en muurisolatie, zonnepanelen, hoogrendementsglas en een warmtepomp of moderne verwarmingsinstallatie. Zo ... verhoogt u het wooncomfort én de energieprestatie aanzienlijk.
🏠 Volledige kelder – eindeloze mogelijkheden:
De kelder strekt zich uit onder de hele woning en is volledig droog. Perfect geschikt als werkplaats, hobbyruimte, opslag, wijnkelder of zelfs een praktijkruimte aan huis. Dankzij de ruimte en bereikbaarheid is dit een enorm pluspunt dat zelden voorkomt.
📍 Ligging:
De woning is rustig gelegen in een groene omgeving, met goede bereikbaarheid van winkels, scholen en uitvalswegen. Hier geniet u van privacy én comfort, terwijl u toch dicht bij alles bent.
💬 Interesse of een bezoek plannen?
Voor meer informatie of een bezichtiging, neem contact op met Rob Deliën via telefoon op 0483 73 79 00, WhatsApp, of per mail. Lees meer Verberg
🏡 Belangrijkste kenmerken:
Vrijstaande gelijkvloerse woning, bouwjaar 1971
Volledig onderkelderd, droog en multifunctioneel inzetbaar
Gelegen op een perceel van 1715 m²
3 slaapkamers op het gelijkvloers
Grote ramen zorgen voor veel lichtinval
Oprit en diepe tuin rondom de woning
Elektrische verwarming (EPC-label F)
Overdekt terras aan de voorzijde
Rustige ligging met vlotte verbindingen
💡 Renovatiekansen met toekomstwaarde
De woning is voorzien van elektrische verwarming en heeft momenteel een EPC-label F, maar vormt een uitstekende basis voor een energiezuinige renovatie. Denk aan dak- en muurisolatie, zonnepanelen, hoogrendementsglas en een warmtepomp of moderne verwarmingsinstallatie. Zo ... verhoogt u het wooncomfort én de energieprestatie aanzienlijk.
🏠 Volledige kelder – eindeloze mogelijkheden:
De kelder strekt zich uit onder de hele woning en is volledig droog. Perfect geschikt als werkplaats, hobbyruimte, opslag, wijnkelder of zelfs een praktijkruimte aan huis. Dankzij de ruimte en bereikbaarheid is dit een enorm pluspunt dat zelden voorkomt.
📍 Ligging:
De woning is rustig gelegen in een groene omgeving, met goede bereikbaarheid van winkels, scholen en uitvalswegen. Hier geniet u van privacy én comfort, terwijl u toch dicht bij alles bent.
💬 Interesse of een bezoek plannen?
Voor meer informatie of een bezichtiging, neem contact op met Rob Deliën via telefoon op 0483 73 79 00, WhatsApp, of per mail. Lees meer Verberg