Te Koop Europese wijk Belgiëlaan 24 2440 Geel nabij Europese school
Vraagprijs
Te renoveren woning op royaal perceel van 1.710 m² – tal van mogelijkheden!
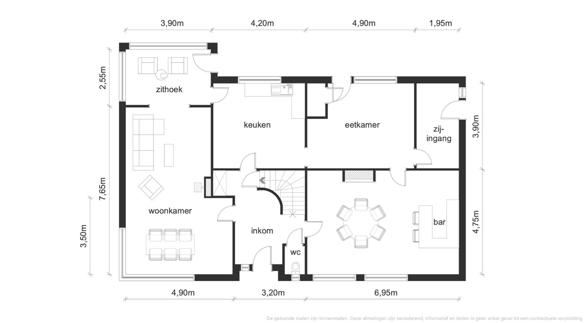
Ontdek deze ruime woning, gelegen in de Europese wijk van Geel (Belgiëlaan 24, 2440 Geel), op een residentiële toplocatie. Het perceel van maar liefst 1.710 m² met een indrukwekkende straatbreedte van 37 meter biedt bijzonder veel potentieel voor wie op zoek is naar een eproject met diverse indelingsmogelijkheden.
De woning beschikt over 5 slaapkamers, 2 keukens en 2 badkamers, wat ze uitermate geschikt maakt voor dubbele bewoning, co-housing, kangoeroe wonen of een combinatie van wonen en werken. Mits de nodige renovatiewerken kan dit pand omgevormd worden tot een echte parel, volledig naar eigen smaak en noden. Doordat het een houtskelet woning is kan je nog alle kanten uit met de indeling
🔹 Troeven:
Gelegen in de Europese wijk – Belgiëlaan 24, 2440 Geel
Groot perceel van 1.710 m²
37 meter straatbreedte
5 slaapkamers
2 keukens & 2 badkamers
Mogelijkheid tot opsplitsen in twee wooneenheden
Rustige, residentiële ligging
📞 ... Voor meer informatie of een bezoek: Rob Deliën
🌐 Meer info op: www.immodelien.be
(alle attesten vind u terug op mijn website onder documenten)
📧 Mail naar: info@immodelien.be
📱 Bel of WhatsApp: 0483 73 79 00
💬 Overweegt u uw eigen woning te verkopen? Neem gerust vrijblijvend contact op! Lees meer Verberg
Ontdek deze ruime woning, gelegen in de Europese wijk van Geel (Belgiëlaan 24, 2440 Geel), op een residentiële toplocatie. Het perceel van maar liefst 1.710 m² met een indrukwekkende straatbreedte van 37 meter biedt bijzonder veel potentieel voor wie op zoek is naar een eproject met diverse indelingsmogelijkheden.
De woning beschikt over 5 slaapkamers, 2 keukens en 2 badkamers, wat ze uitermate geschikt maakt voor dubbele bewoning, co-housing, kangoeroe wonen of een combinatie van wonen en werken. Mits de nodige renovatiewerken kan dit pand omgevormd worden tot een echte parel, volledig naar eigen smaak en noden. Doordat het een houtskelet woning is kan je nog alle kanten uit met de indeling
🔹 Troeven:
Gelegen in de Europese wijk – Belgiëlaan 24, 2440 Geel
Groot perceel van 1.710 m²
37 meter straatbreedte
5 slaapkamers
2 keukens & 2 badkamers
Mogelijkheid tot opsplitsen in twee wooneenheden
Rustige, residentiële ligging
📞 ... Voor meer informatie of een bezoek: Rob Deliën
🌐 Meer info op: www.immodelien.be
(alle attesten vind u terug op mijn website onder documenten)
📧 Mail naar: info@immodelien.be
📱 Bel of WhatsApp: 0483 73 79 00
💬 Overweegt u uw eigen woning te verkopen? Neem gerust vrijblijvend contact op! Lees meer Verberg